Beschreibung
Spezifikation
Beschreibung
Merkmale
 
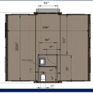
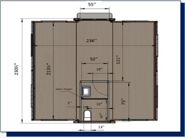
Abmessung L19XW20XH8 (nach Erweiterung), 380 Quadratfuß
L28.4 „x H77.2“ Badezimmertürgröße
Rahmenstruktur
Stahlrahmenkonstruktion
Blumenschaumwandplatte
Schneelast 40 lb/pi²
Windlast 70 Meilen pro Stunde
Dach
Wärmeisolationsdach in Flaggen Aluminium Magnesium Manganese
 
Boden
Magnesiumglasboden
Bodenlederlaminat resistent gegen 0,08 Zoll
R Wert r
0,2 ~ 0,5 (M2 · k/w)
Fenster
Schichtschichtschichtschieberschichtschichtschlossfenster
Fenster außerhalb des Badezimmers: Plastikglasfenster
Toilette mit Dusche
DUSGE -Vorhangunterstützung, Duschventil, Duschwässerung, Duschstange, Boden Siphon, Türstopp: Edelstahl.
Duschvorhang: Plane
Winth Tauschhandel, WC -Pinsel: Aluminiumlegierung
Wasserkappe, Spiegelbox: PVC
Stille Extraktionsfan
Sicherheitstüren
Haupttür: Aluminiumtür mit Schloss
Toilettenentür: WPC -Tür + gefrosteter Glas
Strom
Müssen zusätzlich konfigurieren
Heißes und kaltes Wasserventil
Edelstahlnuance 304
 
Armaturen
Heiße und kalte Wasserpfeife pPR
PVC -Abflussschlauch
Isolierschlauch
Einrichtung
Hydraulische Verstärkung: 3000N Druck
Laufen: 6204
Scharnierscheibe Block: 2000 lbs
Metallkabel: φ5 mm
Umweltschutz neutraler Materialien
Mastix
															





























															
															



